小張剛開了一家甜品店,店面裝修好后,準備營業,可是聽朋友說還需要辦理一個衛生許可證才能正式開張。他起初覺得很麻煩,但為了順利開店,還是去了解了辦理流程。

首先向當地衛生部門提出了申請,想要申請衛生許可證。準備了所有需要的材料,順利提交了申請。
法人及負責人的身份證:需要提供身份證的原件和復印件。
營業執照副本:如果你已經有了營業執照,也得提交它的復印件。

經營場所合法使用證明:如果店面是租的,那就得提供租賃合同,證明你有合法的經營場所。
公共場所衛生檢測報告:這項很重要,證明你的場所符合衛生標準。小張找了中旗代辦服務,專業檢測人員上門檢查,幾天內就拿到了報告,方便快捷。
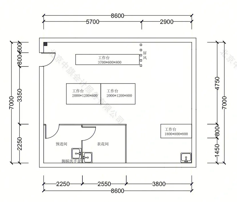
平面圖:你的店鋪布局圖,越清晰越好。這份平面圖也是中旗人員上門給畫的一次就過了。

公共場所衛生管理制度:這個是店鋪的衛生管理規定,內容可以參考網上的模板,稍微修改就可以了。
衛生許可證申請書:這個表格可以在衛生局或者相關網站上下載。
員工健康證:店里的員工都要有健康證,這是為了保證大家的食品衛生安全。
接下來,當小張提交了所有材料,相關部門會進行審核。這時候要特別注意,提交的材料一定要真實、完整。像有些人會因為租賃合同寫錯字,或身份證復印件不清晰,導致材料退回,浪費了時間。

如果審核沒問題,工作人員可能還會到你店里做一次現場審查。檢查的內容一般包括店鋪的衛生狀況、布局是否合理、消毒設施是否齊全等。店鋪在檢查前特意做了一次大掃除,確保每個角落都干干凈凈,結果順利通過了檢查。
在經過審核和現場審查后,衛生許可證很快就下來了。這意味著他的甜品店終于可以正式開業了!如果你有什么不懂的,可以隨時留言哦!
本文鏈接: http://www.tzzlm.com.cn/mfwz/927.html 未經授權,禁止轉載。
上一篇:如何通過官網輕松查詢商標?