小旗看到淄博燒烤這么火,也想開一家自己的燒烤店。但他知道,開店不是隨便擺個爐子就能行的,得辦好多手續呢。那到底要辦哪些手續呢?
首先得先去工商局辦個營業執照,其實說白了,只要你想做任何小買賣首先都是要辦它,因為它是必須辦理的。辦這個證,得帶上自己的身份證、租房合同或者房子的證明文件等!

但是你要自己考慮清楚,是辦個體的還是辦企業性質的!每個都有自己的好處,不懂的可以再翻翻我上幾篇文章有介紹個體戶和企業的差別。
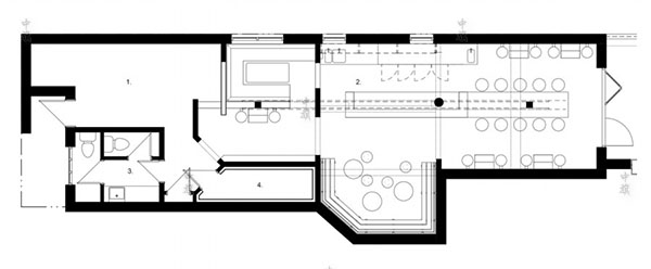
然后,食品安全可是大事兒。還得去食品藥品監督管理局申請個食品經營許可證。這個證得看你的店干不干凈,食材新不新鮮。就像你去餐館吃飯,也會看看人家有沒有這個證一樣。這個是需要提供店面平面圖的,店鋪里邊怎么設計的你就要在平面圖上體現出來,店里怎么擺、怎么洗菜的圖都準備好,然后讓人家來檢查,通過了才能拿證。

接著,賺錢了還得交稅。得去稅務局報個到領個稅務登記證。這樣,每個月賺了多少錢,該交多少稅,心里就有數了。
燒烤店得防火、防污染。還得找消防隊看看店里的消防設施行不行,再去找環保局看看油煙排得干不干凈。
不管你雇人還是自己家里人幫忙,都要有健康證,這個去醫院體檢就行了。
本文鏈接: http://www.tzzlm.com.cn/mfwz/472.html 未經授權,禁止轉載。
下一篇:個體戶與企業注冊資金有什么區別?