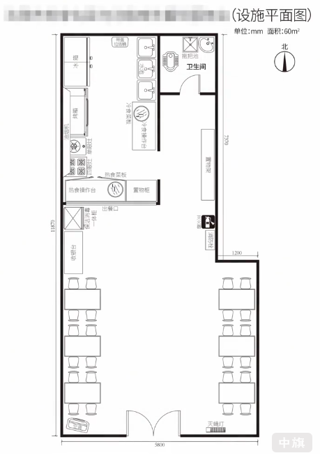
琳姐在北京經營一家小餐館,裝修一切準備就緒后開始辦理食品經營許可證,昨天周日來我們公司了,因為她上一家的記賬也放在我們家,所以都是老顧客了,比較熟悉,她來問她家這個小餐館的店鋪平面圖怎么畫,能不能幫她畫好,我這一聽,趕緊幫她把平面圖畫出來了。

很多老板覺得平面圖很難畫,其實不然,很多普通畫圖軟件也能完成,圖也并不復雜,只要清楚標明廚房、倉庫、洗手池、消毒區、收銀臺等位置,再配上尺寸和比例就能達到要求。
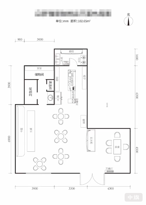
食品經營許可證申請中的平面圖是監管部門判斷店鋪空間布局是否合理的重要依據,它能讓審核人員清楚看到各功能區分布、食品加工流程及人員活動路線是否符合衛生管理要求。

平面圖上通常需要展示營業區、廚房、清洗區、儲藏區、衛生間等區域,并標明出入口、通風設備、水源和排水口位置。
常見的繪圖工具包括:AutoCAD、億圖圖示、Visio、SketchUp、或者簡單的WPS繪圖、Word自帶繪圖功能,對于小型店鋪使用電腦上的億圖圖示或WPS繪圖功能就足夠完成。

操作時先畫出店鋪外形輪廓然后用矩形、線條和文字標明各功能區域最后標注尺寸。
監管部門需要知道各區域的大小和相對位置,尤其是廚房、儲藏區和洗手區等關鍵位置。
建議使用統一比例繪制,按1:100比例標注,每個功能區的長寬、門窗位置、排水口方向都要在圖中標注清楚,如果是租賃場地,房東提供的建筑圖紙也可作為參考。

在北京辦理食品經營許可證時,平面圖通常需要提交電子版文件(PDF或JPG格式),部分區還要求打印紙質版隨材料一并提交,申請人先準備電子版,上傳系統或發送給審批人員審核,再打印一份紙質版與申請表、租賃合同等資料一并提交。
本文鏈接: http://www.tzzlm.com.cn/mfwz/2744.html 未經授權,禁止轉載。
下一篇:企業申請106號段需要哪些資質?